Насосная станция IBO AJ 50/60 с баком 50л
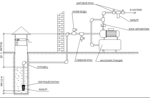
Насосная станция (гидрофор) польского производителя IBO модели АJ 50/60 с баком на 50 литров предназначена для поддержания постоянного давления воды в тех местах, где оно недостаточно для работы различных автоматов, работающих на этом ресурсе, снабжения водой дачных участков, индивидуальных строений и малых предприятий.В насосе применяются прокладки из современных керамографитовых материалов, которые полностью исключают какие-либо протечки из корпуса.Насосная станция IBO AJ 50/60 с баком 50л может подавать воду из любого чистого источника, зеркало которого находится не ниже 8-ми метров от точки установки агрегата.
Высокая производительность
Работоспособность водного агрегата в номинальном режиме не менее 3.6 тонны воды в час, при высоте столба в 50 метров.Работа двигателя насоса рассчитана на «домашнее» напряжение в 220В/50 Гц.Гидроаккумулятор станции вмещает 50 литров воды с постоянным давлением 4 бара. Он выполнен или из листовой стали, покрытой специальной не коррозирующей эмалью или из нержавейки. Чтобы определиться с моделью насоса, необходимо учитывать расстояние от уровня земли до воды, расстояние, на которое будет подаваться водяной поток и объемы воды, которые предполагается использовать.
Особенности:
- наличие мощного и надежного двигателя
- длительный срок эксплуатации обеспечивают детали из качественных материалов: крыльчатка — из нержавеющей стали, корпус насоса, задняя стенка — из чугуна
- расширительный бак на 50 литров — проверенный европейский производитель, сертификаты качества — работает от обычной домашней сети (220В)

Производитель:IBO, PHU DAMBAT Feliksow
Страна изготовителя:Польша





Отзывы
Отзывов пока нет.